Ihre Services im Dashboard..
Registriert nutzen Sie das komplette Angebot.

DEHNiso-Combi Sets

Komponenten für Getrennte Fangeinrichtungen (isoliert).Zum Schutz von größeren Dachaufbauten z. B. Klimageräten, Rückkühlanlagen etc.Zum Einhalten des Trennungsabstandes zu elektrisch leitenden Teilen nach DIN EN 62305-3 (VDE 0185-305-3).Rohre und Distanzhalter aus glasfaserverstärktem Kunststoff (GFK), UV-stabilisiert, Farbe lichtgrau, Dauertemperaturbereich -50 bis +100 °C.
  • Kompletteinheit montagefertig
  • Geringes Eigengewicht
  • Stabile Ausführung des gesamte Aufbaus
  • Befestigungsschellen mit Einschrauben-Technik
  • Vielfältige Lochbilder für unterschiedlichste Montageanforderungen
Für die Bestimmung des Trennungsabstandes (Länge des Distanzstabes) wird der Materialfaktor km = 0,7 verwendet.1 m Distanzstab entspricht einer äquivalenten Luftstrecke von 0,7 m.Die maximale freie Länge bezieht sich auf den Kopf der Stützrohre bis zum oberen Halter (Befestigungspunkt).Bei Überspannungen mit Aluminiumseil (Art.-Nr. 840 050) sind Abstände von max. 10 m möglich (Durchhang beachten).

Einteilig Gesamthöhe 4200 mm

Bestehend aus:
1x Fangspitze NIRO, L = 1000 mm (Art.-Nr. 105 071)
1x Stützrohr GFK/Al, L = 3200 mm (Art.-Nr. 105 300)
2x Wandbefestigungswinkel NIRO (Art.-Nr. 105 340)
1x Distanzhalter GFK/Al, L = 1030 mm (Art.-Nr. 106 331)

1 Produkt

Art.-Nr. 105440 DICS WB D50.10 4.2M GFK AL V2A

GTIN 4013364099692, Zolltarifnr. (EU): 85389099, Bruttogewicht: 7.64 kg, VPE: 1.00 Stk.


Abbildungen

Weitere Information

DEHNiso-Combi Sets Gesamtlänge 4200mm GFK/Al
DEHNiso-Combi Sets
Komponenten für Getrennte (isoliert) Fangeinrichtungen
zum Schutz von größeren Dachaufbauten z.B. Klimageräten,
Rückkühlanlagen etc.
Zum Einhalten des Trennungsabstand zu elektrisch
leitenden Teilen nach DIN EN 62305-3 (VDE 0185-305-3)
Isolierstrecke aus glasfaserverstärktem Kunststoff (GFK)
Rohr Ø50 mm und Distanzstab Ø16 mm
Materialfaktor km = 0,7
Farbe lichtgrau, UV-stabilisiert, 1-teilig,
DEHNiso-Combi Sets, nach
Eurocode 1 (DIN EN 1991-1-4 + DIN EN 1991-1-4/NA) dimensioniert,
bestehend aus:
1x Fangspitze Al, L = 1000 mm (Art.-Nr. 105 071)
1x Stützrohr GFK/Al, L = 3200 mm (Art.-Nr. 105 300)
2x Wandbefestigungswinkel NIRO (V2A) (Art.-Nr. 105 340)
1x Distanzhalter GFK/Al, L = 1030 mm (Art.-Nr. 106 331)
Gesamtlänge: 4200 mm
Anzahl Befestigungswinkel: 2
Länge Stützrohr: 3200 mm
Max. Böenwindgeschwindigkeit: (Wandmontage max. freie Länge 3500 mm, Ø8 mm) 232 km/h
Werkstoff Stützrohr: GFK / Al
Normenbezug: DIN IEC/TS 62561-8 (VDE V 0185-561-8)

Fabrikat: DEHN
Typ: DICS WB D50.10 4.2M GFK AL V2A
Art.-Nr.: 105440
oder gleichwertig.

Zertifikate

 

Technische Daten

Gesamtlänge 4200 mm
Anzahl Befestigungswinkel 2
Länge Stützrohr 3200 mm
Max. Böenwindgeschwindigkeit (Wandmontage max. freie Länge 3500 mm, Ø8 mm) 232 km/h
Werkstoff Stützrohr GFK / Al
Normenbezug DIN IEC/TS 62561-8 (VDE V 0185-561-8)

Artikel 105440 wurde zum Merkzettel hinzugefügt.

Zum Merkzettel

Artikel 105440 wurde zum Warenkorb hinzugefügt.

Zum Warenkorb

Einteilig Gesamthöhe 5700 mm

Bestehend aus:
1x Fangspitze NIRO, L = 1000 mm (Art.-Nr. 105 071)
1x Stützrohr GFK/Al, L = 4700 mm (Art.-Nr. 105 301)
3x Wandbefestigungswinkel NIRO (Art.-Nr. 105 340)
2x Distanzhalter GFK/Al, L = 1030 mm (Art.-Nr. 106 331)

1 Produkt

Art.-Nr. 105455 DICS WB D50 10 5700 GFK AL V2A

GTIN 4013364099715, Zolltarifnr. (EU): 85389099, Bruttogewicht: 11.45 kg, VPE: 1.00 Stk.


Abbildungen

Weitere Information

DEHNiso-Combi Sets Gesamtlänge 5700mm GFK/Al
DEHNiso-Combi Sets
Komponenten für Getrennte (isoliert) Fangeinrichtungen
zum Schutz von größeren Dachaufbauten z.B. Klimageräten,
Rückkühlanlagen etc.
Zum Einhalten des Trennungsabstand zu elektrisch
leitenden Teilen nach DIN EN 62305-3 (VDE 0185-305-3)
Isolierstrecke aus glasfaserverstärktem Kunststoff (GFK)
Rohr Ø50 mm und Distanzstab Ø16 mm
Materialfaktor km = 0,7
Farbe lichtgrau, UV-stabilisiert, 1-teilig,
DEHNiso-Combi Sets, nach
Eurocode 1 (DIN EN 1991-1-4 + DIN EN 1991-1-4/NA) dimensioniert,
bestehend aus:
1x Fangspitze Al, L = 1000 mm (Art.-Nr. 105 071)
1x Stützrohr GFK/Al, L = 4700 mm (Art.-Nr. 105 301)
3x Wandbefestigungswinkel NIRO (V2A) (Art.-Nr. 105 340)
2x Distanzhalter GFK/Al, L = 1030 mm (Art.-Nr. 106 331)
Gesamtlänge: 5700 mm
Anzahl Befestigungswinkel: 3
Länge Stützrohr: 4700 mm
Max. Böenwindgeschwindigkeit: (Wandmontage max. freie Länge 4000 mm, Ø8 mm) 206 km/h
Werkstoff Stützrohr: GFK / Al
Normenbezug: DIN IEC/TS 62561-8 (VDE V 0185-561-8)

Fabrikat: DEHN
Typ: DICS WB D50 10 5700 GFK AL V2A
Art.-Nr.: 105455
oder gleichwertig.

Zertifikate

 

Technische Daten

Gesamtlänge 5700 mm
Anzahl Befestigungswinkel 3
Länge Stützrohr 4700 mm
Max. Böenwindgeschwindigkeit (Wandmontage max. freie Länge 4000 mm, Ø8 mm) 206 km/h
Werkstoff Stützrohr GFK / Al
Normenbezug DIN IEC/TS 62561-8 (VDE V 0185-561-8)

Artikel 105455 wurde zum Merkzettel hinzugefügt.

Zum Merkzettel

Artikel 105455 wurde zum Warenkorb hinzugefügt.

Zum Warenkorb

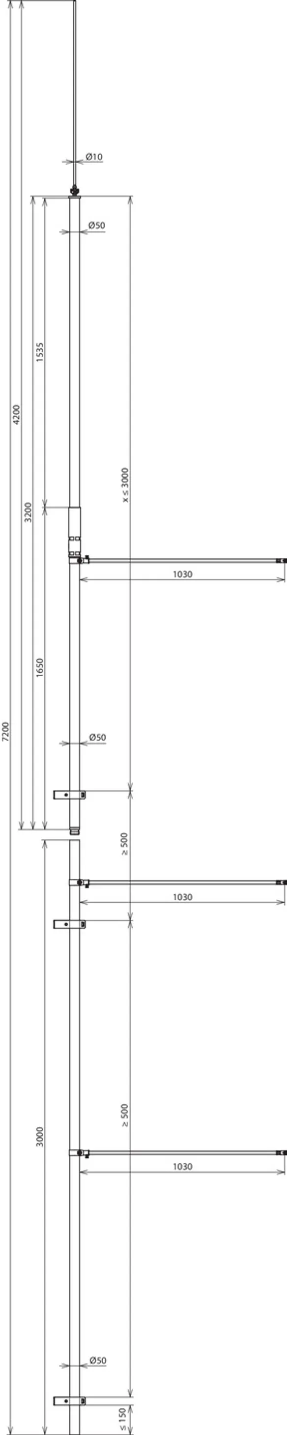
Zweiteilig Gesamthöhe 7200 mm

(Transportlänge 3200 mm)
Bestehend aus:
1x Fangspitze NIRO, L = 1000 mm (Art.-Nr. 105 071)
1x Stützrohr GFK/Al, L = 6200 mm (Art.-Nr. 105 302)
3x Wandbefestigungswinkel NIRO (Art.-Nr. 105 340)
3x Distanzhalter GFK/Al, L = 1030 mm (Art.-Nr. 106 331)

1 Produkt

Art.-Nr. 105470 DICS WB D50 10 7200 GFK AL V2A

GTIN 4013364100138, Zolltarifnr. (EU): 85389099, Bruttogewicht: 14.65 kg, VPE: 1.00 Stk.


Abbildungen

Weitere Information

DEHNiso-Combi Sets zweiteilig Gesamtlänge 7200mm GFK/Al
DEHNiso-Combi Sets
Komponenten für Getrennte (isoliert) Fangeinrichtungen
zum Schutz von größeren Dachaufbauten z.B. Klimageräten,
Rückkühlanlagen etc.
Zum Einhalten des Trennungsabstand zu elektrisch
leitenden Teilen nach DIN EN 62305-3 (VDE 0185-305-3)
Isolierstrecke aus glasfaserverstärktem Kunststoff (GFK)
Rohr Ø50 mm und Distanzstab Ø16 mm
Materialfaktor km = 0,7
Farbe lichtgrau, UV-stabilisiert
2-teilig, (Tranportlänge 3200 mm)
DEHNiso-Combi Sets, nach
Eurocode 1 (DIN EN 1991-1-4 + DIN EN 1991-1-4/NA) dimensioniert,
bestehend aus:
1x Fangspitze Al, L = 1000 mm (Art.-Nr. 105 071)
1x Stützrohr GFK/Al, L = 6200 mm (Art.-Nr. 105 302)
3x Wandbefestigungswinkel NIRO (V2A) (Art.-Nr. 105 340)
3x Distanzhalter GFK/Al, L = 1030 mm (Art.-Nr. 106 331)
Gesamtlänge: 7200 mm
Anzahl Befestigungswinkel: 3
Länge Stützrohr: 6200 mm
Max. Böenwindgeschwindigkeit: (Wandmontage max. freie Länge 4000 mm, Ø8 mm) 206 km/h
Werkstoff Stützrohr: GFK / Al
Normenbezug: DIN IEC/TS 62561-8 (VDE V 0185-561-8)

Fabrikat: DEHN
Typ: DICS WB D50 10 7200 GFK AL V2A
Art.-Nr.: 105470
oder gleichwertig.

Zertifikate

 

Technische Daten

Gesamtlänge 7200 mm
Anzahl Befestigungswinkel 3
Länge Stützrohr 6200 mm
Max. Böenwindgeschwindigkeit (Wandmontage max. freie Länge 4000 mm, Ø8 mm) 206 km/h
Werkstoff Stützrohr GFK / Al
Normenbezug DIN IEC/TS 62561-8 (VDE V 0185-561-8)

Artikel 105470 wurde zum Merkzettel hinzugefügt.

Zum Merkzettel

Artikel 105470 wurde zum Warenkorb hinzugefügt.

Zum Warenkorb

nach oben