HVI light plus Leitung im Stützrohr verlegt (Ø40 mm)
HVI Leitung im Stützrohr verlegt (Ø50 mm),
sowie zur Aufsatzbefestigung der Stützrohre und der Unterdachverlegung von der HVI Leitung oder der HVI light plus Leitung.
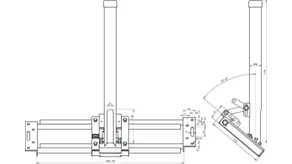
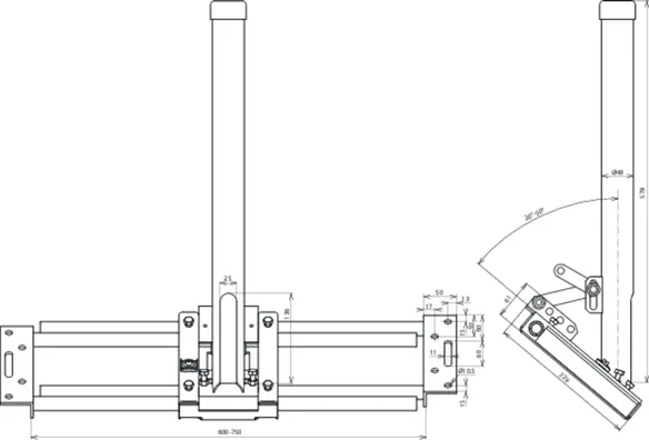
Der Dachsparrenhalter kann auf geeignete, tragfähige Unterkonstruktionen montiert werden.Der Dachsparrenhalter ist konzipiert für ein eingeleitetes Moment bis 320 Nm.Die Montage erfolgt von außen und wird direkt oder durch die Konterlattung mit dem Sparren verschraubt.Der Dachsparrenhalter kann nicht bei Aufdachdämmungen und nur bedingt bei Biberschwanz-Dachziegeln eingesetzt werden.Hinweis: Die Montagesituation ist bauseits mit dem Gebäudeerrichter abzuklären.
Dachsparrenhalter St/tZn Dachsparrenhalter zum Befestigen von Fangstangen und Stützrohren Mit Kabeldurchführung für DEHNconductor-Syteme (inkl. Befestigungsschrauben)
Werkstoff: St/tZn
Verstellbereich: 600-750 mm
Dachneigung: 20-50°
Durchmesser Ø Aufnahmerohr: 48 mm
Durchmesser Ø Kabeldurchführung im Aufnahmerohr: 25 mm