Ihre Services im Dashboard..
Registriert nutzen Sie das komplette Angebot.

Fangmast für Unterdachverlegung der HVI light Leitung

Zur Aufsatzmontage auf den Dachsparrenhalter.Optisch angepasste innenliegende Verlegung der HVI light Leitung im Stützrohr. Die HVI light Leitung wird durch das Standrohr des Dachsparrenhalters geführt und im Bereich der Konter- / Dachlattung verlegt.Vorteile:
  • Unterdachverlegung – optisch nicht erkennbar
  • Aufsatzmontage mit nur einem sichtbaren Rohr
  • Keine mechanische Beanspruchung z. B. durch Schneelast
Die Mindestbestelllänge beträgt 6 m. Die Leitungslänge ist bei Bestellung anzugeben (0,5 m Schritte).Auf Grund der auftragsbezogenen Fertigung (Konfektionierung der Leitungslänge) kann die Leitung nicht zurückgenommen werden.

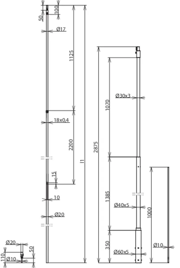
DEHNcon-H / HVI light Leitung im Stützrohr mit Fangspitze

Mit innenliegendem Endverschluss und Fangspitze Ø10 mm.

1 Produkt

Art.-Nr. 819243 HVI LI 20 L6M SR2875 FSP1000 DSH GFK AL

GTIN 4013364255951, Zolltarifnr. (EU): 85389099, Bruttogewicht: 9.24 kg, VPE: 1.00 Stk.

Vorgänger

Abbildungen

Weitere Information

Fangmast für Unterdachverlegung der HVI light Leitung
Fangmast mit HVI light Leitung und Fangspitze
für die Unterdachverlegung zur Aufsatzmontage auf den Dachsparrenhalter
Die HVI light Leitung wird durch das Standrohr des Dachsparrenhalters
geführt und im Bereich der Konter-/Dachlattung verlegt.
Die Stützrohre sind nach
Eurocode 1 (DIN EN 1991-1-4 + DIN EN 1991-1-4/NA) dimensioniert.
DEHNcon-H HVI light Leitung im Stützrohr, mit speziellem
innenliegendem Endverschluss und Fangspitze Ø10 mm Länge 1000 mm
Werkstoff Stützrohr: GFK / Al
Länge Stützrohr: 2875 mm
Farbe Leitung: grau ●
Werkstoff Leiter: Cu
Äquivalenter Trennungsabstand s (in Luft): ≤ 45 cm
Mindestbestelllänge: 6 m
Max. Böenwindgeschwindigkeit: 149 km/h
Normenbezug: DIN IEC/TS 62561-8 (VDE V 0185-561-8)

Fabrikat: DEHN
Typ: HVI LI 20 L6M SR2875 FSP1000 DSH GFK AL
Art.-Nr.: 819243
oder gleichwertig.

Zertifikate

 

Technische Daten

Werkstoff Stützrohr GFK / Al
Länge Stützrohr 2875 mm
Länge Fangspitze 1000 mm
Durchmesser Ø Außen GFK 30 mm
Durchmesser Ø Leitung 20 mm
Farbe Leitung grau
Werkstoff Leiter Cu
Äquivalenter Trennungsabstand s (in Luft) ≤ 45 cm
Mindestbestelllänge 6 m
Max. Böenwindgeschwindigkeit 149 km/h
Normenbezug DIN IEC/TS 62561-8 (VDE V 0185-561-8)

Artikel 819243 wurde zum Merkzettel hinzugefügt.

Zum Merkzettel

Artikel 819243 wurde zum Warenkorb hinzugefügt.

Zum Warenkorb

nach oben