Ihre Services im Dashboard..
Registriert nutzen Sie das komplette Angebot.

Bandrohrschellen für Ex-Bereiche Zone 1/21, 2/22

Anschlüsse für den Potentialausgleich und den Blitzschutz-Potentialausgleich in Ex-Bereichen wurden bis dato häufig geschweißt oder mit Gewindebuchsen ausgeführt. Der Einsatz von Schellen wird nur genehmigt, wenn die Zündsicherheit bei Blitzströmen nachgewiesen wurde. Einen Nachweis der Zündfunkenfreiheit bei Blitzstrombeanspruchung hat DEHN für die Bandrohrschellen erbracht. Durch die Realisierung der Prüfung nach DIN EN 62561-1 (VDE 0185-561-1): Anforderungen für Verbindungsbauteile (Klemmen und Verbinder) in einer explosionsfähigen Atmosphäre wurde die Zündfunkenfreiheit des Prüflings bei einer Blitzstrombeanspruchung bis 50 kA (10/350 µs) nachgewiesen. Der Aufbau dieser neuartigen, patentierten Bandrohrschelle für den Ex-Bereich berücksichtigt zum einen eine sichere elektrische Kontaktierung durch zwei Kontaktbügel, zum anderen die mechanische Fixierung über je einen elektrisch isolierten Schellenkörper. Zur fachgerechten Vorspannung des Spannbandes wird einmalig das separat erhältliche Montageset (Art.-Nr. 540902) benötigt.

Für die Ex-Bandrohrschelle stehen folgende Anschlussmöglichkeiten zur Verfügung:
– Rundleiter aus Cu, St/tZn, Al, NIRO mit Ø8/10 mm oder fein- / mehrdrähtige Leiter aus Kupfer mit einem Querschnitt 16-35 mm2 mit Presskabelschuh aus E-Cu (DIN 46235)
– Flachleiter aus Kupfer mit Mindestabmessungen 20 x 2,5 mm mit einer Bohrung Ø10,5 mm

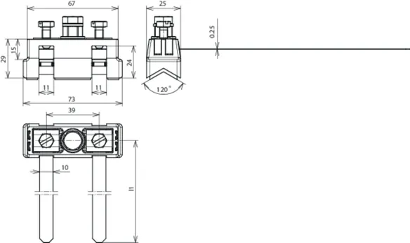
Typ EX BRS 27

Klemmbereich von Ø6-27 mm (3/4").

1 Produkt

Art.-Nr. 540821 EX BRS 27

GTIN 4013364123724, Zolltarifnr. (EU): 85359000, Bruttogewicht: 238.00 g, VPE: 1.00 Stk.


Abbildungen

Weitere Information

Bandrohrschellen für Ex-Bereiche EX BRS 27
Bandrohrschelle für Ex-Bereiche
zur elektrischen Kontaktierung von Rohren
im Ex-Bereich und Umsetzung des
Blitzschutz-Potentialausgleiches
nach DIN EN 62305-3 (VDE 0185-305-3)
Einsatz in den explosionsgefährdeten Bereichen
Ex-Zonen 1 und 2 (Gase, Dämpfe, Nebel) sowie
Ex-Zonen 21 und 22 (Stäube)
Notwendiges Montageset (Art.-Nr. 540902)
separat erhältlich
Blitzstoßstrom (10/350 µs) Cu Ø6-12 mm: 10 kA
Blitzstoßstrom (10/350 µs) Cu Ø12-27 mm (3/4"): 20 kA
Blitzstoßstrom (10/350 µs) Cu Ø27 mm (3/4"): 25 kA
Blitzstoßstrom (10/350 µs) St/tZn Ø17-27 mm (3/4"): 25 kA
Blitzstoßstrom (10/350 µs) NIRO Ø6-27 mm: 10 kA
Blitzstoßstrom (10/350 µs) NIRO Ø27 mm (3/4"): 25 kA
Klemmbereich Rohr Ø: 6-27 mm (3/4")
Werkstoff Schellenkörper: Polyamid
Werkstoff Spannkopf / Band: NIRO
Werkstoff Kontaktstück: Ms/gal Sn
Normenbezug: DIN CLC/TS 50703-2 (VDE V 0185-703-2)

Fabrikat: DEHN
Typ: EX BRS 27
Art.-Nr.: 540821
oder gleichwertig.

Zertifikate

 

Technische Daten

Blitzstoßstrom (10/350 µs) Cu Ø6-12 mm (Iimp ) 10 kA
Blitzstoßstrom (10/350 µs) Cu Ø12-27 mm (3/4") (Iimp ) 20 kA
Blitzstoßstrom (10/350 µs) Cu Ø27 mm (3/4") (Iimp ) 25 kA
Blitzstoßstrom (10/350 µs) St/tZn Ø17-27 mm (3/4") (Iimp ) 25 kA
Blitzstoßstrom (10/350 µs) NIRO Ø6-27 mm (Iimp ) 10 kA
Blitzstoßstrom (10/350 µs) NIRO Ø27 mm (3/4") (Iimp ) 25 kA
Anschluss M8
Klemmbereich Rohr Ø 6-27 mm (3/4")
Werkstoff Schellenkörper Polyamid
Werkstoff Spannkopf / Band NIRO
Werkstoff Kontaktstück Ms/gal Sn
Normenbezug DIN CLC/TS 50703-2 (VDE V 0185-703-2)

Artikel 540821 wurde zum Merkzettel hinzugefügt.

Zum Merkzettel

Artikel 540821 wurde zum Warenkorb hinzugefügt.

Zum Warenkorb

Typ EX BRS 90 / 300 / 500

Typ EX BRS 90 Art.-Nr. 540 801 Klemmbereich von Ø27 (3/4") bis 89 mm (3").
Typ EX BRS 300 Art.-Nr. 540 803 Klemmbereich von Ø89 (3") bis 300 mm.
Typ EX BRS 500 Art.-Nr. 540 805 Klemmbereich von Ø300 bis 500 mm.

3 Produkte

Art.-Nr. 540801 EX BRS 90

GTIN 4013364115460, Zolltarifnr. (EU): 85359000, Bruttogewicht: 583.00 g, VPE: 1.00 Stk.


Abbildungen

Weitere Information

Bandrohrschellen für Ex-Bereiche EX BRS 90
Bandrohrschelle für Ex-Bereiche
zur elektrischen Kontaktierung von Rohren
im Ex-Bereich und Umsetzung des
Blitzschutz-Potentialausgleiches
nach DIN EN 62305-3 (VDE 0185-305-3)
Einsatz in den explosionsgefährdeten Bereichen
Ex-Zonen 1 und 2 (Gase, Dämpfe, Nebel) sowie
Ex-Zonen 21 und 22 (Stäube)
Notwendiges Montageset (Art.-Nr. 540902)
separat erhältlich
Blitzstoßstrom (10/350 µs) Cu: 50 kA
Blitzstoßstrom (10/350 µs) St/tZn : 50 kA
Blitzstoßstrom (10/350 µs) NIRO: 25 kA
Blitzstromtragfähigkeitsklasse nach DIN EN 62561-1: N
Klemmbereich Rohr Ø: 27-89 mm (3/4-3")
Werkstoff Schellenkörper: Polyamid
Werkstoff Spannkopf / Band: NIRO
Werkstoff Kontaktstück: Cu/gal Sn
Normenbezug: DIN EN 62561-1

Fabrikat: DEHN
Typ: EX BRS 90
Art.-Nr.: 540801
oder gleichwertig.

Zertifikate

 

Technische Daten

Blitzstoßstrom (10/350 µs) Cu (Iimp ) 50 kA
Blitzstoßstrom (10/350 µs) St/tZn (Iimp ) 50 kA
Blitzstoßstrom (10/350 µs) NIRO (Iimp ) 25 kA
Blitzstromtragfähigkeitsklasse nach DIN EN 62561-1 N
Anschluss M10
Klemmbereich Rohr Ø 27-89 mm (3/4-3")
Werkstoff Schellenkörper Polyamid
Werkstoff Spannkopf / Band NIRO
Werkstoff Kontaktstück Cu /gal Sn
Normenbezug DIN EN 62561-1

Artikel 540801 wurde zum Merkzettel hinzugefügt.

Zum Merkzettel

Artikel 540801 wurde zum Warenkorb hinzugefügt.

Zum Warenkorb

Art.-Nr. 540803 EX BRS 300

GTIN 4013364115477, Zolltarifnr. (EU): 85359000, Bruttogewicht: 645.50 g, VPE: 1.00 Stk.


Abbildungen

Weitere Information

Bandrohrschellen für Ex-Bereiche EX BRS 300
Bandrohrschelle für Ex-Bereiche
zur elektrischen Kontaktierung von Rohren
im Ex-Bereich und Umsetzung des
Blitzschutz-Potentialausgleiches
nach DIN EN 62305-3 (VDE 0185-305-3)
Einsatz in den explosionsgefährdeten Bereichen
Ex-Zonen 1 und 2 (Gase, Dämpfe, Nebel) sowie
Ex-Zonen 21 und 22 (Stäube)
Notwendiges Montageset (Art.-Nr. 540902)
separat erhältlich
Blitzstoßstrom (10/350 µs) Cu: 50 kA
Blitzstoßstrom (10/350 µs) St/tZn : 50 kA
Blitzstoßstrom (10/350 µs) NIRO: 50 kA
Blitzstromtragfähigkeitsklasse nach DIN EN 62561-1: N
Klemmbereich Rohr Ø: 89 (3")-300 mm
Werkstoff Schellenkörper: Polyamid
Werkstoff Spannkopf / Band: NIRO
Werkstoff Kontaktstück: Cu/gal Sn
Normenbezug: DIN EN 62561-1

Fabrikat: DEHN
Typ: EX BRS 300
Art.-Nr.: 540803
oder gleichwertig.

Zertifikate

 

Technische Daten

Blitzstoßstrom (10/350 µs) Cu (Iimp ) 50 kA
Blitzstoßstrom (10/350 µs) St/tZn (Iimp ) 50 kA
Blitzstoßstrom (10/350 µs) NIRO (Iimp ) 50 kA
Blitzstromtragfähigkeitsklasse nach DIN EN 62561-1 N
Anschluss M10
Klemmbereich Rohr Ø 89 (3")-300 mm
Werkstoff Schellenkörper Polyamid
Werkstoff Spannkopf / Band NIRO
Werkstoff Kontaktstück Cu /gal Sn
Normenbezug DIN EN 62561-1

Artikel 540803 wurde zum Merkzettel hinzugefügt.

Zum Merkzettel

Artikel 540803 wurde zum Warenkorb hinzugefügt.

Zum Warenkorb

Art.-Nr. 540805 EX BRS 500

GTIN 4013364128873, Zolltarifnr. (EU): 85359000, Bruttogewicht: 846.00 g, VPE: 1.00 Stk.


Abbildungen

Weitere Information

Bandrohrschellen für Ex-Bereiche EX BRS 500
Bandrohrschelle für Ex-Bereiche
zur elektrischen Kontaktierung von Rohren
im Ex-Bereich und Umsetzung des
Blitzschutz-Potentialausgleiches
nach DIN EN 62305-3 (VDE 0185-305-3)
Einsatz in den explosionsgefährdeten Bereichen
Ex-Zonen 1 und 2 (Gase, Dämpfe, Nebel) sowie
Ex-Zonen 21 und 22 (Stäube)
Notwendiges Montageset (Art.-Nr. 540902)
separat erhältlich
Blitzstoßstrom (10/350 µs) St/blank: 50 kA
Blitzstoßstrom (10/350 µs) NIRO: 50 kA
Blitzstromtragfähigkeitsklasse nach DIN EN 62561-1: N
Klemmbereich Rohr Ø: 300-500 mm
Werkstoff Schellenkörper: Polyamid
Werkstoff Spannkopf / Band: NIRO
Werkstoff Kontaktstück: Cu/gal Sn
Normenbezug: DIN EN 62561-1

Fabrikat: DEHN
Typ: EX BRS 500
Art.-Nr.: 540805
oder gleichwertig.

Zertifikate

 

Technische Daten

Blitzstoßstrom (10/350 µs) St/blank (Iimp ) 50 kA
Blitzstoßstrom (10/350 µs) NIRO (Iimp ) 50 kA
Blitzstromtragfähigkeitsklasse nach DIN EN 62561-1 N
Anschluss M10
Klemmbereich Rohr Ø 300-500 mm
Werkstoff Schellenkörper Polyamid
Werkstoff Spannkopf / Band NIRO
Werkstoff Kontaktstück Cu /gal Sn
Normenbezug DIN EN 62561-1

Artikel 540805 wurde zum Merkzettel hinzugefügt.

Zum Merkzettel

Artikel 540805 wurde zum Warenkorb hinzugefügt.

Zum Warenkorb

Separater Schellenkörper

In Verbindung mit Endlos-Spannband (Art.-Nr. 540 901) Klemmbereiche von Ø27 (3/4") bis 500 mm.

1 Produkt

Art.-Nr. 540810 SCK EX BRS ASSM10 V2A

GTIN 4013364115484, Zolltarifnr. (EU): 85359000, Bruttogewicht: 630.00 g, VPE: 1.00 Stk.


Abbildungen

Weitere Information

Bandrohrschellen für Ex-Bereiche Separater Schellenkörper
Bandrohrschelle für Ex-Bereiche
zur elektrischen Kontaktierung von Rohren
im Ex-Bereich und Umsetzung des
Blitzschutz-Potentialausgleiches
nach DIN EN 62305-3 (VDE 0185-305-3)
Einsatz in den explosionsgefährdeten Bereichen
Ex-Zonen 1 und 2 (Gase, Dämpfe, Nebel) sowie
Ex-Zonen 21 und 22 (Stäube)
Separater Schellenkörper
in Verbindung mit Endlos-Spannband (Art.-Nr. 540 901)
Spannbereiche von 3/4' bis D=300 mm
Notwendiges Montageset (Art.-Nr. 540902)
separat erhältlich
Blitzstoßstrom (10/350 µs) Cu: 50 kA
Blitzstoßstrom (10/350 µs) St/tZn : 50 kA
Blitzstoßstrom (10/350 µs) NIRO: 25 kA
Blitzstromtragfähigkeitsklasse nach DIN EN 62561-1: N
Klemmbereich Rohr Ø: 27 (3/4")-500 mm
Werkstoff Schellenkörper: Polyamid
Werkstoff Spannkopf / Band: NIRO
Werkstoff Kontaktstück: Cu/gal Sn
Normenbezug: DIN EN 62561-1

Fabrikat: DEHN
Typ: SCK EX BRS ASSM10 V2A
Art.-Nr.: 540810
oder gleichwertig.

Zertifikate

 

Technische Daten

Blitzstoßstrom (10/350 µs) Cu (Iimp ) 50 kA
Blitzstoßstrom (10/350 µs) St/tZn (Iimp ) 50 kA
Blitzstoßstrom (10/350 µs) NIRO (Iimp ) 25 kA
Blitzstromtragfähigkeitsklasse nach DIN EN 62561-1 N
Anschluss M10
Klemmbereich Rohr Ø 27 (3/4")-500 mm
Werkstoff Schellenkörper Polyamid
Werkstoff Spannkopf / Band NIRO
Werkstoff Kontaktstück Cu /gal Sn
Normenbezug DIN EN 62561-1

Artikel 540810 wurde zum Merkzettel hinzugefügt.

Zum Merkzettel

Artikel 540810 wurde zum Warenkorb hinzugefügt.

Zum Warenkorb

nach oben