Ihre Services im Dashboard..
Registriert nutzen Sie das komplette Angebot.

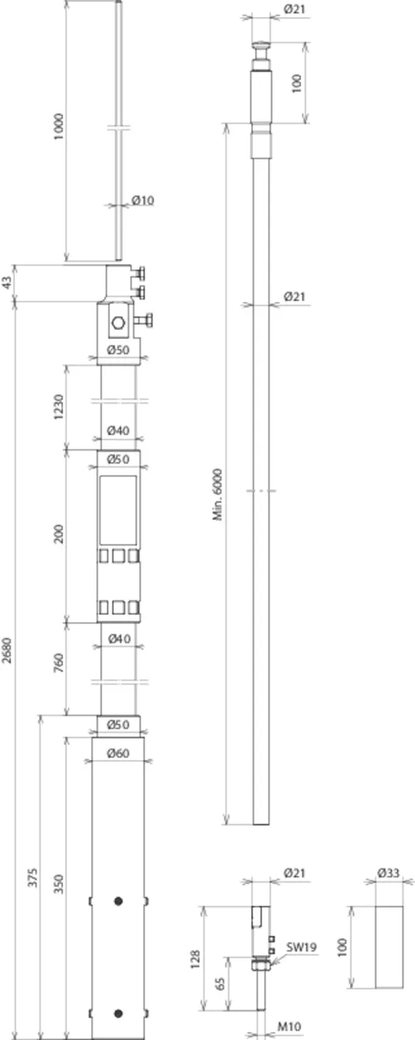
Fangmast mit HVI light plus Leitung für Metall- und Dachsparrenhalter

Das Komplettset des Fangmastes zur Aufsatzmontage auf den Metalldach- / Dachsparrenhalter dient zur Unterdachverlegung der HVI light plus Leitung.

Das Set besteht aus:
– Fangspitze NIRO, Ø10 mm, Länge 1000 mm
– Stützrohr GFK/Al, Ø40/50/60 mm, Länge 2680 mm
– HVI light plus Leitung (vorkonfektioniert Rohrinnenverlegung)

1 Produkt

Art.-Nr. 819688 HVI LI PL L6M SR2680 FSP1000 GFK AL V2A

GTIN 4013364499782, Zolltarifnr. (EU): 85389099, Bruttogewicht: 10.40 kg, VPE: 1.00 Stk.


Abbildungen

Weitere Information

HVI light plus Leitung im Stützrohr 2680mm mit Fangspitze 1000mm
Getrennte Fangeinrichtung
z.B. von Sende-/Empfangsanlagen
(Parabol-, terrestrische Antennen).
Optisch angepasste Ausführung durch innere Verlegung
der HVI light plus Leitung im Stützrohr
Hochspannungsfeste isolierte Ableitung zum Einhalten
des Trennungsabstandes zu elektrisch leitenden Teilen
nach DIN EN 62305-3 (VDE 0185-305-3)
Äquivalenter Trennungsabstand s =< 60 cm (in Luft)
oder s =< 120 cm (fester Baustoff).
Die Stützrohre sind nach
Eurocode 1 (DIN EN 1991-1-4 + DIN EN 1991-1-4/NA) dimensioniert.
HVI light plus Leitung im Stützrohr verlegt,
mit speziellem innenliegendem
Endverschluss und Fangspitze Ø10 mm Länge 1000 mm
Werkstoff Stützrohr: GFK / Al
Länge Stützrohr: 2680 mm
Transportlänge: 2680 mm
Farbe Leitung: grau ●
Werkstoff Leiter: Cu
Äquivalenter Trennungsabstand s (in Luft): ≤ 60 cm
Mindestbestelllänge: 6 m
Max. Bestelllänge: 70 m
Normenbezug: DIN IEC/TS 62561-8 (VDE V 0185-561-8)

Fabrikat: DEHN
Typ: HVI LI PL L6M SR2680 FSP1000 GFK AL V2A
Art.-Nr.: 819688
oder gleichwertig.

Zertifikate

 

Technische Daten

Werkstoff Stützrohr GFK / Al
Länge Stützrohr 2680 mm
Transportlänge 2680 mm
Länge Fangspitze 1000 mm
Durchmesser Ø Leitung 21 mm
Farbe Leitung grau
Werkstoff Leiter Cu
Äquivalenter Trennungsabstand s (in Luft) ≤ 60 cm
Mindestbestelllänge 6 m
Max. Bestelllänge 70 m
Normenbezug DIN IEC/TS 62561-8 (VDE V 0185-561-8)

Artikel 819688 wurde zum Merkzettel hinzugefügt.

Zum Merkzettel

Artikel 819688 wurde zum Warenkorb hinzugefügt.

Zum Warenkorb

nach oben