Ihre Services im Dashboard..
Registriert nutzen Sie das komplette Angebot.

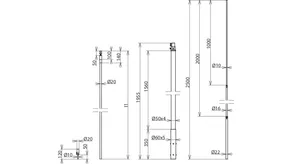
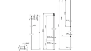
Fangmast für Unterdachverlegung der HVI Leitung

Zur Aufsatzmontage auf den Dachsparrenhalter.Optisch angepasste innenliegende Verlegung der HVI Leitung im Stützrohr. Die HVI Leitung wird durch das Standrohr des Dachsparrenhalters geführt und im Bereich der Konter- / Dachlattung verlegt.Vorteile:
  • Unterdachverlegung – optisch nicht erkennbar
  • Aufsatzmontage mit nur einem sichtbaren Rohr
  • Keine mechanische Beanspruchung z. B. durch Schneelast
Die Mindestbestelllänge beträgt 6 m. Die Leitungslänge ist bei Bestellung anzugeben (0,5 m Schritte).Auf Grund der auftragsbezogenen Fertigung (Konfektionierung der Leitungslänge) kann die Leitung nicht zurückgenommen werden.

HVI Leitung im Stützrohr mit Fangstange

1 Produkt

Art.-Nr. 819247 HVI 20 M L6M SR1955 FS2500 DSH GFK AL

GTIN 4013364260900, Zolltarifnr. (EU): 85389099, Bruttogewicht: 7.10 kg, VPE: 1.00 Stk.


Abbildungen

Weitere Information

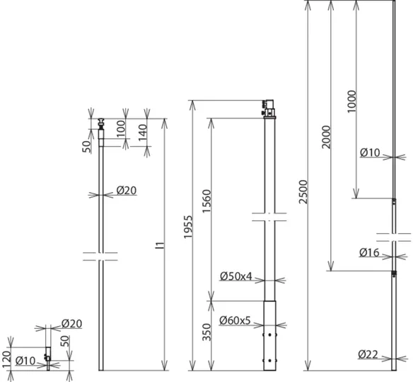
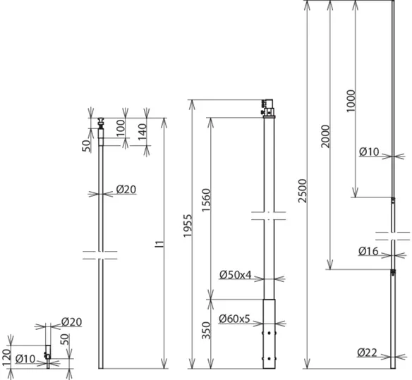
Fangmast für Unterdachverlegung der HVI Leitung
Fangmast mit HVI Leitung und Fangstange für
die Unterdachverlegung zur Aufsatzmontage auf den Dachsparrenhalter
Die HVI Leitung wird durch das Standrohr des Dachsparrenhalters
geführt und im Bereich der Konter-/Dachlattung verlegt.
Die Stützrohre sind nach
Eurocode 1 (DIN EN 1991-1-4 + DIN EN 1991-1-4/NA) dimensioniert.
DEHNcon-H HVI Leitung im Stützrohr, mit speziellem innenliegendem
Endverschluss und Fangstange Ø22/16/10 mm Länge 2500 mm
Werkstoff Stützrohr: GFK / Al
Länge Stützrohr: 1955 mm
Farbe Leitung: schwarz ●
Werkstoff Leiter: Cu
Äquivalenter Trennungsabstand s (in Luft): ≤ 75 cm
Mindestbestelllänge: 6 m
Max. Böenwindgeschwindigkeit: 140 km/h
Normenbezug: DIN IEC/TS 62561-8 (VDE V 0185-561-8)

Fabrikat: DEHN
Typ: HVI 20 M L6M SR1955 FS2500 DSH GFK AL
Art.-Nr.: 819247
oder gleichwertig.

Zertifikate

 

Technische Daten

Werkstoff Stützrohr GFK / Al
Länge Stützrohr 1955 mm
Länge Fangstange 2500 mm
Durchmesser Ø Außen GFK 50 mm
Durchmesser Ø Leitung 20 mm
Farbe Leitung schwarz ●
Werkstoff Leiter Cu
Äquivalenter Trennungsabstand s (in Luft) ≤ 75 cm
Mindestbestelllänge 6 m
Max. Böenwindgeschwindigkeit 140 km/h
Normenbezug DIN IEC/TS 62561-8 (VDE V 0185-561-8)

Artikel 819247 wurde zum Merkzettel hinzugefügt.

Zum Merkzettel

Artikel 819247 wurde zum Warenkorb hinzugefügt.

Zum Warenkorb

nach oben